€
EUR
£
GBP
kr
SEK
CHF
CHF
₽
RUB
$
AUD
$
CAD
¥
JPY
$
USD
R$
BRL
¥
CNY
₹
INR
Fastigheter
Utveckling
Nyheter
Vill sälja
Om oss
Kontakter
More
Fastigheter
Utveckling
Nyheter
Vill sälja
Om oss
Kontakter
0
0
€
EUR
£
GBP
kr
SEK
CHF
CHF
₽
RUB
$
AUD
$
CAD
¥
JPY
$
USD
R$
BRL
¥
CNY
₹
INR
Real Estate
Aveiro, Espinho, Anta e Guetim
Gå tillbaka
\
Real Estate - Aveiro, Espinho, Anta e Guetim
Dela egendom
Facebook
X
Pinterest
WhatsApp
Kopiera länk
Link copiado
Skriva ut
Skicka bostad till en vän
Ange ett namn
Lägg in ett e-postmeddelande
Ange en giltig e-postadress
Ange ett namn
Lägg in ett e-postmeddelande
Ange en giltig e-postadress
Jag har läst och godkänt villkoren som har angivits.
Veta mer »
För att avsluta denna operation bör du läsa och godkänna våra villkor.
Obligatoriska fält *
skicka
foton
videoklipp
Byggdokument
Virtuell rundtur
Seguir imóvel
Seguir imóvel
Receba um alerta quando existir uma Baixa de Preço
namn
Insira o seu Nome
E-post
Ange din e-postadress
Ange en giltig e-postadress
Li e aceito a
integritetspolicy
För att avsluta denna operation bör du läsa och godkänna våra villkor.
Insätt koden från bilden
Koda
skicka
Real Estate, Aveiro, Espinho, Anta e Guetim
140 000 €
Ref:
2924
400 m²
1224 m²
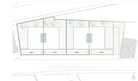
Land for sale in Anta - Espinho, with 1224m2, flat on the side of the road, with feasibility study of construction of up to 4 houses, but can build 1, 2 or 3. Land facing 2 streets where you can build villas for sale or for housing.
- Gross Total Construction Area: 808m2
- Total Deployment Area: 548.8m2
- Total Construction Area: 1356.8m2
- Number of Above Ground Floors: 2
- Number Of Floors Below Ground: 1
Study carried out for the construction of 4 villas, Typology T3, with 202m2 of Gross Construction Area and 126m2 of Private Outdoor Area.
Located in a residential area, at the entrance of the city of Espinho, which a few meters away has several services and amenities, such as supermarket, schools (basic and secondary), bakery, restaurants and cafes, ATMs, pharmacy, and also access to the highway.
Contact us for more information and come to the place to know this property.
Excluded from the SCE, under article 4(f) of Decree-Law No. 118/2013 of 20 August
Intresserad av denna fastighet?
Datum
Time
namn
Ange ett namn
E-post
Lägg in ett e-postmeddelande
Ange en giltig e-postadress
Kontakta
Skriv in ditt telefonnummer
Meddelande
Jag begär mer information, utan några åtaganden, om fastigheten 2924
Jag har läst och godkänt villkoren som har angivits.
integritetspolicy
För att avsluta denna operation bör du läsa och godkänna våra villkor.
Koda
Insätt koden som visas i bilden.
skicka
Fastighets typ
Real Estate
Typologi
0 Rum
Mål
Sälja
Status
Begagnade
Pris
140 000 €
Byggår
Inte tillgänglig
Land
Portugal
distrikt
Aveiro
länet
Espinho
Socken
Anta e Guetim
Zon
Perto de Espinho
Hemkredit och IMT-simulator
Kreditsimulator
IMT-simulator
Fastighetens värde*
Lånebelopp*
Din ålder*
Lånetid *
Månatlig avbetalning
0.00
€
Det angivna beloppet för avbetalning inkluderar inte livförsäkring och hemförsäkring.
Index
0.000
%
TAEG
0.000
%
Spread
0.000
%
Tid
0
anos
TAN
0.000
%
Simulera
Inserir aqui o disclaimer. Isto é apenas uma simulação. Esta simulação de crédito não tem fins lucrativos.
Fastighetens plats*
Välj
Kontinentala Portugal
Autonoma regioner
Finality*
Välj
Permanent egen bostad
Andrahandsboende eller uthyrning
Lantliga fastigheter
Övrigt
Fastighetens värde*
Kompletterande värden*
IMT
0.00
€
Stämpelskatt (0,8%)
0.00
€
Kompletterande värden
0.00
€
Totalt belopp att betala
0.00
€
Mais informações
Simulera
Inserir aqui o disclaimer. Isto é apenas uma simulação. Esta simulação de crédito não tem fins lucrativos.
Dados de Intermediação de Crédito - (Intermediário de Crédito nº )
Saiba mais sobre a sua simulação
namn
Campo obrigatório
E-post
Campo obrigatório
Insira um e-mail válido
Kontakta
Campo obrigatório
kommentarer
Isto é apenas uma simulação. Esta simulação de crédito não tem fins lucrativos.
Li e aceito a
integritetspolicy
För att avsluta denna operation bör du läsa och godkänna våra villkor.
Koda
Insätt koden som visas i bilden.
Enviar
Allmänna funktioner
Allmän
divisioner
divisioner
Område
Golv
väggar
tak
kommentarer
Miljö
Funktioner
Hemautomatisering
Förnybar energi
Se också
Aveiro, Espinho, Paramos
70 000 €
Stå
70 000 €
Stå
Aveiro, Espinho, Paramos
3
2
850 m²
A. Land
Contactar
Reserverad
Aveiro, Espinho, Anta e Guetim
På förfrågan
Stå
På förfrågan
Stå
Aveiro, Espinho, Anta e Guetim
1217 m²
A. Land
Contactar
Aveiro, Espinho, Anta e Guetim
160 000 €
Fastighetsmark
160 000 €
Fastighetsmark
Aveiro, Espinho, Anta e Guetim
663,5 m²
A. Land
Contactar
Fler egenskaper +
Vi är tillgängliga för att hjälpa dig
Jag vill bli kontaktad
Datum
Time
namn
Ange ett namn
E-post
Lägg in ett e-postmeddelande
Ange en giltig e-postadress
Kontakta
Insätt dina kontaktuppgifter
Meddelande
Li e aceito a
integritetspolicy
För att avsluta denna operation bör du läsa och godkänna våra villkor.
Koda
Insätt koden som visas i bilden.
skicka
O que é a pesquisa responsável
Esta pesquisa permite obter resultados mais ajustados à sua disponibilidade financeira.